по Екатеринбурге
от производителей
Встраиваемый Биокамин SteelHeat ONE-V 1400 XL предназначен для встраивания в глухие ниши из гипсокартона, кирпича, пеноблоков, бетона.
Биокамин SteelHeat ONE-V 1400 XL прекрасно подойдет под любой стиль интерьера. Живой огонь наделит ваш интерьер особым шармом и роскошью. Биокамин SteelHeat ONE-V 1400 XL подходит для установки в помещения любых размеров и является абсолютно безопасным. Биокамин SteelHeat ONE-V 1400 XL выполняет не только декоративную роль, но и обогревающую, благодаря чему вы сможете прекрасно провести время возле него в холодные зимние вечера.
Особенности конструкции
- цельносварной корпус без стыков и соединений, изготовленный из прочной листовой стали толщиной 2,5 мм;
- топливный бак изготовлен из шлифованной нержавеющей стали с толщиной верхней крышки 4 мм, обеспечивающей его большой эксплуатационный ресурс;
- все элементы корпуса биокамина покрыты огнеупорной порошковой краской, которая обеспечивает простую чистку изделия от пыли;
- специализированная перфорированная сетка и заслонка топливного бака делают ручное управление биокамином безопасным и очень удобным;
- вертикальные шлифованные накладки стального цвета, благодаря которым биокамин обретает индивидуальность и более стильный внешний вид.
Технические особенности
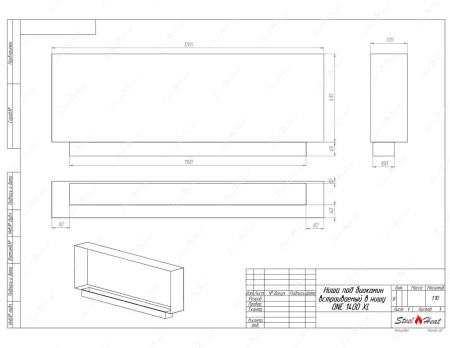
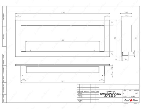
- размер топливного бака – 1100 мм;
- линия огня – 100 см;
- время горения – ~4 часа;
- объем – 3,99 л.
- Защитное стекло – термоустойчивое закаленное стекло со специальной рамкой высотой 80 мм и толщиной 4 мм. Данный элемент выполняет защитную и декоративную роль;
- Стемалит - закаленное стекло, выдерживающее температуру до 700 градусов. Благодаря данному элементу увеличивается объем пламени за счет отражающего эффекта.
Габариты
Технические
Для покупки товара в нашем интернет-магазине выберите понравившийся товар и добавьте его в корзину. Далее перейдите в Корзину и нажмите на «Оформить заказ» или «Быстрый заказ».
Когда оформляете быстрый заказ, напишите ФИО, телефон и e-mail. Вам перезвонит менеджер и уточнит условия заказа. По результатам разговора вам придет подтверждение оформления товара на почту или через СМС. Теперь останется только ждать доставки и радоваться новой покупке.
Оформление заказа в стандартном режиме выглядит следующим образом. Заполняете полностью форму по последовательным этапам: адрес, способ доставки, оплаты, данные о себе. Советуем в комментарии к заказу написать информацию, которая поможет курьеру вас найти. Нажмите кнопку «Оформить заказ».
Оплачивайте покупки удобным способом. В интернет-магазине доступно 3 варианта оплаты:
- Наличные при самовывозе или доставке курьером. Специалист свяжется с вами в день доставки, чтобы уточнить время и заранее подготовить сдачу с любой купюры. Вы подписываете товаросопроводительные документы, вносите денежные средства, получаете товар и чек.
- Безналичный расчет при самовывозе или оформлении в интернет-магазине: карты Visa и MasterCard. Чтобы оплатить покупку, система перенаправит вас на сервер системы ASSIST. Здесь нужно ввести номер карты, срок действия и имя держателя.
- Электронные системы при онлайн-заказе: PayPal, WebMoney и Яндекс.Деньги. Для совершения покупки система перенаправит вас на страницу платежного сервиса. Здесь необходимо заполнить форму по инструкции.
Экономьте время на получении заказа. В интернет-магазине доступно 3 варианта доставки:
- Курьерская доставка работает с 9.00 до 19.00. Когда товар поступит на склад, курьерская служба свяжется для уточнения деталей. Специалист предложит выбрать удобное время доставки и уточнит адрес. Осмотрите упаковку на целостность и соответствие указанной комплектации.
- Самовывоз из магазина или склада. Когда заказ поступит на склад, Вам придет уведомление. Мы свяжемся с Вами, уточним время в которое можете приехать.
- Транспортной компанией. Доставим товар в любой город до двери. Заказ можно оплатить при получении.
Самовывоз - 1-2 дня
Доставка курьером - 2-3 дня
Ростов-на-Дону:
Самовывоз - 3-4 дня
Доставка курьером - 4-5 дней
Самовывоз - 4-5 дней
Доставка курьером - 6-7 дней
Воронеж:
Самовывоз - 2 дня
Доставка курьером - 2-3 дня
Самовывоз - 6-7 дней
Доставка курьером -8-9дней
Москва:
Самовывоз - Сегодня
Доставка курьером - 1-2 дня








